
运行的所有数据都可以根据客户的使用要求变频调整,以提高在不同状态下的高效运行。
1) 风冷型强制风冷系统
2) 每套空气悬浮离心风机包括叶轮、PMSM永磁高速电动机、空气悬浮轴承、变频器,空气过滤装置、PLC、触控屏以及各种温度及压力传感等仪表、电源断路器等。
3)配套安装法兰,配套链接螺栓。
4)自动调整水平安装的地脚。
设备安装
在安装的过程中只需要客户现场有固化10cm以上混泥土承重地面,设备基础平整度要求为1mm/m,有现场开机的服务工程师调整,地面平整度为水平和垂直方向不大于 1 cm/m即可。
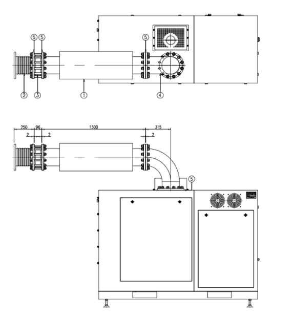
整台设备安装为2种水平管道安装和垂直管道安装。
安装示意图:
水平安装排气管道:
1、安装排气消音器按箭头方向和排气方向一致
2、金属膨胀节防止管道的热胀冷缩,
3、排气单向阀 防止 空气 回流
4、90 °弯头
5、配套法兰和螺栓。